Rif: IMMO-124972671
PALERMO
PALERMO - zona Montepellegrino
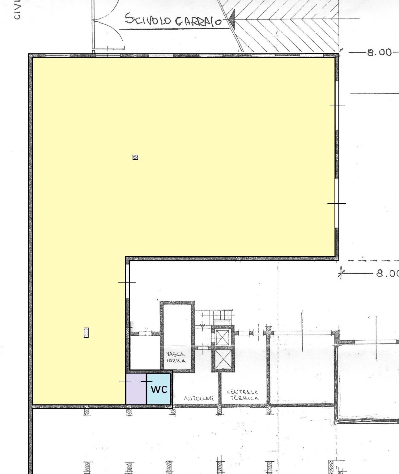
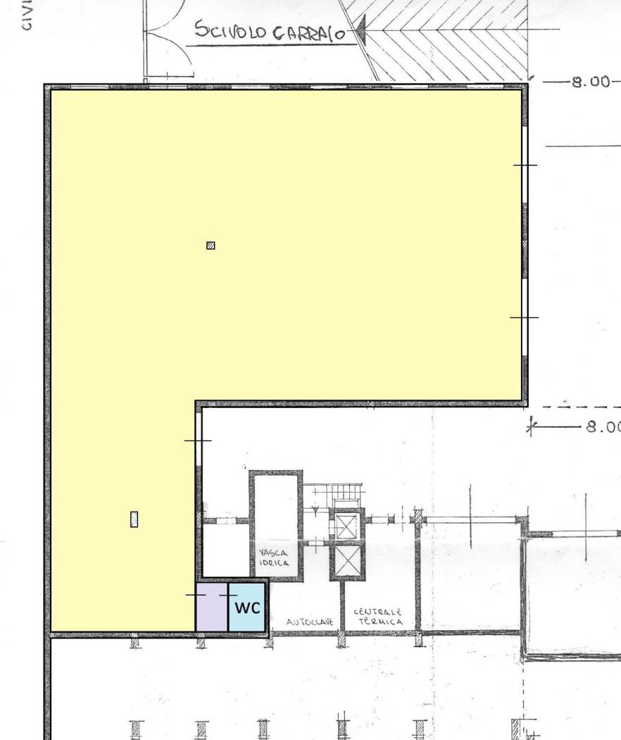
IN TRATTATIVA Nei pressi di via Ammiraglio Rizzo, esattamente in via Ammiraglio Paolo Thaon De Revel n 22 con ingresso carrabile da via G. Peralta n.6, al piano seminterrato, proponiamo in locazione un grande magazzino di 558 mq categoria C2 con 3 ingressi ai quali si accede da uno scivolo carraio camionabile. Il locale è composto da un unico grande ambiente con wc.
Canone mensile Euro 1.800. Per informazioni e appuntamenti chiamare allo 091 /508.36.91
Canone mensile Euro 1.800. Per informazioni e appuntamenti chiamare allo 091 /508.36.91
Consistenze
| Descrizione | Superficie | Sup. comm. |
|---|---|---|
| Principali | ||
| Magazzino - piano interrato | 558 Mq | 558 Mqc |
| Totale | 558 Mqc | |







